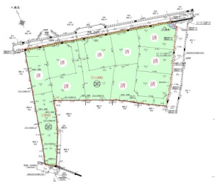
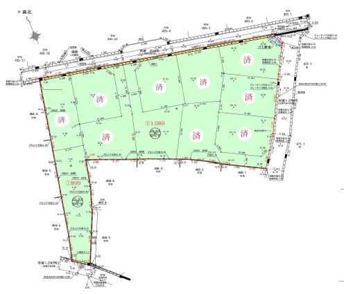
取手市稲467-8の土地 茨城県取手市稲|1,080万円の土地|ピタットハウス守谷店 | スカイ・エステート
| 価格 | 1,080万円 ![]() |
||||
|---|---|---|---|---|---|
| 所在地 | 茨城県取手市稲
この地域周辺の物件を見る |
土地面積 | 218.13m² (公簿) (65.98坪) | 坪単価 | 16.37万円 /坪 |
| 交通 |
関東鉄道常総線 寺原 徒歩11分
JR常磐線 取手 徒歩30分 関東鉄道常総線 取手 徒歩28分 |
建ぺい率 | 50 % | 容積率 | 100 % |
| 特徴 |
|
|---|---|
| 物件MEMO | ※給水加入金22万円 |
| 建築条件 | - | 土地権利 | 所有権 |
|---|---|---|---|
| 現況/引渡し | 更地/即時 | 接道状況 | 接道: 北 |
| 私道負担面積 | - | セットバック | - |
| 地勢 | 地目 | 宅地 | |
| 用途地域 | 第一種低層住居専用地域 | 都市計画 | 市街化区域 |
| 法令上の制限 | - | 国土法届出 | - |
| 取引態様 | 仲介 | ||
| 情報更新日 | 2026年02月27日 | 次回更新日 | 2026年03月13日 |
| 小学校区 | 取手市立取手西小学校 (茨城県取手市) 茨城県取手市立取手西小学校学区の他の物件を見る |
中学校区 | 取手第二中学校 (茨城県取手市) 茨城県取手市立取手第二中学校学区の他の物件を見る |
|---|
| 価格 | 万円 | ||
|---|---|---|---|
| 年利率 | % |
||
| ボーナス払い | 返済年数 | ||
| 頭金 | 直接入力する | 万円 | |

毎月のご返済額 |
ボーナス(×年2回) |
物件価格1,080万円 |
※「ホームページを見た」と
お伝え下さい。
【物件番号:RHS-t-1251】
お客様のために日々
売却活動を行っています。
私たちは不動産を通してお客様との
「絆」を大切にしています。
〒302-0115
茨城県守谷市中央4丁目13番8号
電話番号:0297-21-0881
営業時間:10:00~18:30
定休日:水曜日
-