\新築/松ケ丘5丁目〈4LDK〉-LiGNAGE-1期2号棟 茨城県守谷市松ケ丘5丁目|4,999万円の新築一戸建て|ピタットハウス守谷店 | スカイ・エステート
| 価格 | 4,999万円 ![]() |
||||
|---|---|---|---|---|---|
| 所在地 | 茨城県守谷市松ケ丘5丁目
この地域周辺の物件を見る |
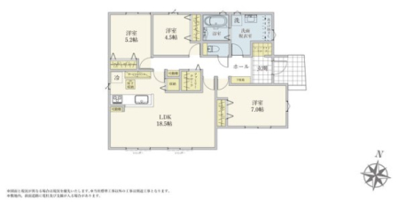
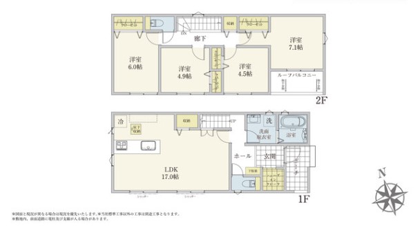
土地面積 | 154.29m² (実測) (46.67坪) | 建物面積 | 103.91m2 |
| 完成年月 | 2025年6月築 | 間取り | 4LDK (-) | ||
| 交通 |
つくばエクスプレス 守谷 徒歩17分
|
||||
| 特徴 |
|
|---|---|
| 物件MEMO | 《周辺環境》 〇松ケ丘小学校……約210m 〇けやき台中学校……約850m 〇アクロスモール守谷……約550m 〇ジョイフル本田守谷店……約1100m 〇イオンタウン守谷……約650m ※司法書士は売主指定 |
| 採光面 | - | 構造/階数 | 木造/地上2階建 |
|---|---|---|---|
| 建ぺい率 | 40(%) | 容積率 | 80(%) |
| 駐車場 | 有 | 現況/引渡し | 建築中/2025年7月上旬 |
| 土地権利 | 所有権 | 私道負担面積 | なし |
| 接道状況 | 接道: 東 7.8m 公道 道路幅: 5.9m | 用途地域 |
第一種低層住居専用地域
|
| セットバック | - | 法令上の制限 | 宅地造成工事規制区域,敷地内段差有,法22条区域 絶対高さ制限10m 敷地内擁壁有り |
| 地目 | 宅地 | 地勢 | 平坦 |
| 建築確認番号 | 第25UDI1W建12320号 | 都市計画 | 市街化区域 |
| 取引態様 | 媒介 | ||
| 情報更新日 | 2026年05月01日 | 次回更新日 | 2026年05月15日 |
| 小学校区 | 守谷市立松ケ丘小学校 (茨城県守谷市) 茨城県守谷市立松ケ丘小学校学区の他の物件を見る |
中学校区 | けやき台中学校 (茨城県守谷市) 茨城県守谷市立けやき台中学校学区の他の物件を見る |
|---|
| 価格 | 万円 | ||
|---|---|---|---|
| 年利率 | % |
||
| ボーナス払い | 返済年数 | ||
| 頭金 | 直接入力する | 万円 | |

毎月のご返済額 |
ボーナス(×年2回) |
物件価格4,999万円 |




















![]() |
![]() |
守谷市松ケ丘5丁目
4999万円 |
※「ホームページを見た」と
お伝え下さい。
【物件番号:RHS-SK-1012】
お客様のために日々
売却活動を行っています。
私たちは不動産を通してお客様との
「絆」を大切にしています。
〒302-0115
茨城県守谷市中央4丁目13番8号
電話番号:0297-21-0881
営業時間:10:00~18:30
定休日:水曜日
☆TX線「守谷」駅まで徒歩6分
☆近隣商業施設が多数!お買い物に便利な立地
☆キッチンはおしゃれな折下げ天井♪
☆充実の設備(食器洗浄乾燥機,給湯・浴室乾燥機・宅配ボックス)
☆長期優良住宅・ZEH水準・耐震等級3♪
☆みらいエコ住宅2026補助金対象物件
※延床面積にインナーバルコニー約4.35平米含む