\新築/野々井〈3LDK・平屋建て〉-LIGNAGE-1期5号棟 茨城県取手市野々井字比丘後|3,099万円の新築一戸建て|ピタットハウス守谷店 | スカイ・エステート
| 価格 | 3,099万円 ![]() |
||||
|---|---|---|---|---|---|
| 所在地 | 茨城県取手市野々井字比丘後
この地域周辺の物件を見る |
土地面積 | 180m² (実測) (54.45坪) | 建物面積 | 87.98m2 |
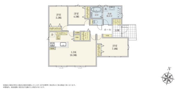
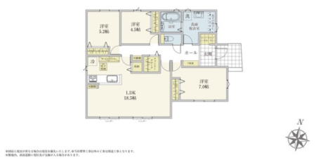
| 完成年月 | 2026年5月築 | 間取り | 3LDK (LDK18.5/洋室7/洋室5.2/洋室4.5) | ||
| 交通 |
関東鉄道常総線 ゆめみ野 徒歩12分
|
||||
| 特徴 |
|
|---|---|
| 物件MEMO | 《周辺環境》 〇高井小学校・・・約1300m 〇永山中学校・・・約1400m 〇TSUTAYA新取手店・・・約650m 〇ダイソージェーソン新取手店・・・約700m 〇TAIRAYA・・・新取手駅前店・・・約800m 〇取手寺田郵便局・・・約850m 〇取手市役所・・・約1500m |
| 採光面 | - | 構造/階数 | 木造/地上1階建 |
|---|---|---|---|
| 建ぺい率 | 40(%) | 容積率 | 80(%) |
| 駐車場 | 有 | 現況/引渡し | 未完成/2026年5月下旬 |
| 土地権利 | 所有権 | 私道負担面積 | - |
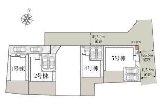
| 接道状況 | 接道: 北 11.9m 公道 道路幅: 5m 接道: 東 11.7m 公道 道路幅: 5.6m |
用途地域 |
第一種低層住居専用地域
|
| セットバック | - | 法令上の制限 | 景観法,法22条区域 日影規制3h−2h/1.5m 絶対高さ制限10m |
| 地目 | 畑 | 地勢 | |
| 建築確認番号 | 第25UDI1W建12798号 | 都市計画 | 市街化区域 |
| 取引態様 | 媒介 | ||
| 情報更新日 | 2026年04月20日 | 次回更新日 | 2026年05月04日 |
| 小学校区 | 取手市立高井小学校 (茨城県取手市) 茨城県取手市立高井小学校学区の他の物件を見る |
中学校区 | 永山中学校 (茨城県取手市) 茨城県取手市立永山中学校学区の他の物件を見る |
|---|
| 価格 | 万円 | ||
|---|---|---|---|
| 年利率 | % |
||
| ボーナス払い | 返済年数 | ||
| 頭金 | 直接入力する | 万円 | |

毎月のご返済額 |
ボーナス(×年2回) |
物件価格3,099万円 |















![]() |
![]() |
取手市野々井字比丘後
1299万円〜3099万円 |
※「ホームページを見た」と
お伝え下さい。
【物件番号:RHS-SK-1017】
お客様のために日々
売却活動を行っています。
私たちは不動産を通してお客様との
「絆」を大切にしています。
〒302-0115
茨城県守谷市中央4丁目13番8号
電話番号:0297-21-0881
営業時間:10:00~18:30
定休日:水曜日
☆常総線「ゆめみ野」駅徒歩12分
☆通勤通学に便利な立地
高井小学校(徒歩17分)/永山中学校(徒歩18分)
☆充実の設備
(浴室乾燥機・24時間換気・全居室ペアガラス・シャワー付き洗面化粧台・宅配BOXなど)
☆長期優良住宅・みらいエコ住宅2026対象住宅・【フラット35】S金利Aプラン
☆耐震等級3
※延床面積にインナーバルコニー約4.97u含む